Nos missions
-

Déclaration préalable de travaux
Je vous accompagne dans la constitution et le dépôt de votre déclaration préalable pour tous vos projets (extension, modification de façade, création d’ouvertures, clôture, changement d’aspect extérieur, etc.). J’analyse la faisabilité réglementaire en amont, prépare les pièces graphiques et administratives nécessaires et assure le suivi auprès des services d’urbanisme afin de sécuriser l’instruction de votre dossier.
-

Permis de construire
Je prends en charge l’ensemble des démarches liées au permis de construire, de l’étude de faisabilité à l’obtention de l’autorisation. Le projet est conçu dans le respect des règles d’urbanisme, des contraintes techniques et de vos objectifs esthétiques et fonctionnels. Je réalise les plans, coupes, façades, insertion paysagère et l’ensemble des pièces réglementaires, tout en assurant les échanges avec l’administration pour optimiser les délais et garantir la conformité du projet.
-

Construction
Je vous accompagne dans la conception et la réalisation de votre projet de construction qu’il s’agisse d’une maison individuelle, d’un agrandissement ou bien d’un abri de jardin. De l’esquisse à la réception des travaux, je coordonne les différents intervenants, veille au respect du budget, des délais et de la qualité d’exécution. Mon rôle est de transformer votre rêve en un projet cohérent, durable et adapté à vos besoins
-

Rénovation
La rénovation demande une compréhension fine de l’existant. J’interviens pour repenser, restructurer ou valoriser un bâtiment tout en respectant son identité et ses contraintes techniques. Mon approche consiste à révéler le potentiel du lieu, améliorer ses performances (énergétiques, fonctionnelles, structurelles) et adapter les espaces aux à vos besoins, dans une logique durable et maîtrisée.
-

Architecture d'intérieur
Je conçois des espaces intérieurs sur mesure, pour les particuliers et professionnels, en portant une attention particulière aux volumes, à la lumière, aux matériaux et aux circulations. L’architecture d’intérieur permet d’optimiser les surfaces, de fluidifier les usages et de créer une atmosphère cohérente avec votre identité. Chaque projet est pensé dans le détail, du plan d’aménagement au choix des finitions, pour allier esthétisme, confort et fonctionnalité.
-

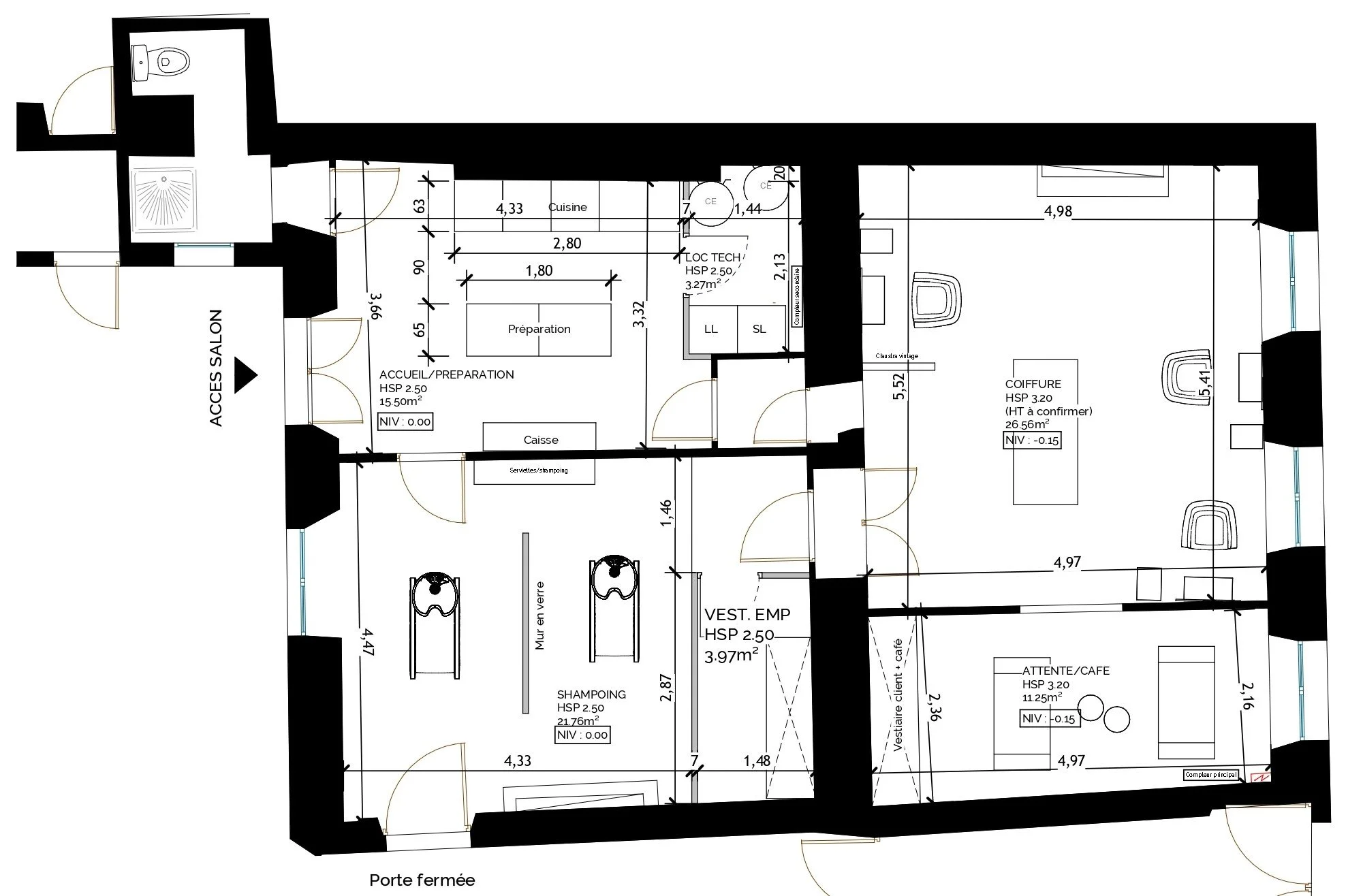
Etablissement recevant du public
Je vous accompagne dans la conception et le montage des dossiers administratifs liés aux établissements recevant du public. Cela inclut la prise en compte des normes d’accessibilité et de sécurité incendie et la préparation des pièces nécessaires au dépôt en mairie ou en préfecture. Mon objectif est de garantir la conformité réglementaire tout en préservant la qualité architecturale de votre projet.